Projekt NORWAY spája škandinávsky minimalizmus, funkčnosť a otvorený, svetlý priestor. Tento drevodom sa vyznačuje čistými geometrickými líniami, veľkoformátovými panoramatickými oknami a otvorenou terasou, ktorá prirodzene prepája interiér s okolím a zdôrazňuje blízkosť k prírode.
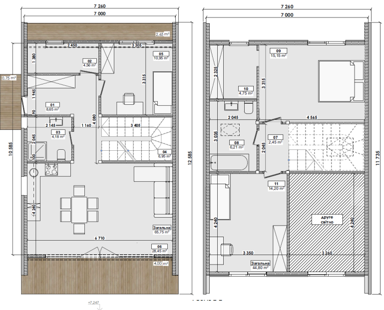
Na prízemí sa nachádza priestranná obývacia izba prepojená s kuchyňou a jedálňou (28,45 m²) s efektným otvoreným stropom cez dve podlažia. Súčasťou dispozície je aj hlavná spálňa so samostatným šatníkom, kúpeľňa, technická miestnosť a vstupná chodba. K domu patria terasy s celkovou výmerou viac ako 7 m², pričom časť z nich je zastrešená.
Poschodie ponúka dve útulné spálne, ďalšiu kúpeľňu a galériu s výhľadom do obývacieho priestoru cez otvorený dvojpodlažný priestor, čo ešte viac umocňuje pocit svetla a priestoru v interiéri.
- Zastavaná plocha: 85 m²
- Rozmer: 160 m²
- Poschodia: 2
- Spálne: 3
- Terasa: 14 m²
- Kúpeľňa: Áno
63 700 €
Nosná prefabrikovaná konštrukcia (steny, strecha, podlaha, okná, tepelná/zvuková izolácia)
24 000 €
Montáž konštrukcie (Je potrebné zabezpečiť ubytovanie pre montážny tím. Ak to nie je možné, pracovníci môžu zostať v mobilnom karavane za poplatok 65 eur na deň).
Od 9 000 €
Základy na pilótach alebo pätkách (pre rovný terén)
Dodatočné možnosti:
- Povrchová úprava okien – antracit – 3700 eur
- Zatmavenie skiel „Solar“ – 1690 eur
- Základná elektroinštalácia – 7 800 eur
- Vodoinštalácia a sanitárne zariadenie – 4 380 eur
- Povrchová úprava stien (vrátane montáže priečok, dreveného obkladu a izolácie) – 29 850 eur
- Vnútorné podlahy, laminát – 6 320 eur
- Interiérové dvere – 2 500
- Dodatočná izolácia 50 mm – 6000 eur
- Dodatočná izolácia 100 mm – 12 000 eur
- Strešné okno – 760 eur
- Bočné okno (výklopno-sklopné) 90×205 cm – 540 eur
- Bočné okno (pevné) 90×205 cm – 500 eur
- Bočné okno (výklopno-sklopné) 55×90 cm – 225 eur
- Kovové vstupné dvere s 2 zámkami a tepelnou izoláciou – 720 eur
- Dodatočné vstupné dvere (PVC) – 660 eur
- Kuchyňa (bez domácich spotrebičov) – 2850 eur
- Vybavenie kúpeľne (sprchový kút, WC, bojler, umývadlo) – 3200 eur
Technické špecifikácie
KONŠTRUKCIA:
Rámová montovaná drevostavba (prefabrikované dielce vyrábané strojovo s dôrazom na presnosť a rýchlu montáž)
OKNÁ / DVERE:
Plastové profily, 5-komorové, dvojsklo (možnosť výmeny za trojsklo podľa požiadavky)
IZOLÁCIA:
Minerálna vlna – v stenách, podlahe aj streche (štandardná hrúbka 150–200 mm podľa zvolenej konfigurácie)
STREŠNÁ KRYTINA:
Sedlová strecha s kovovým plechom (spoľahlivý odvod vody, odolnosť voči poveternostným vplyvom, farebný variant podľa výberu klienta)
PODLAHA:
OSB doskové riešenie, pripravené na pokládku finálnej podlahovej vrstvy (napr. laminát, vinyl)
ŽIVOTNOSŤ DOMU:
Navrhnutá na viac ako 80 rokov pri správnej montáži a pravidelnej údržbe
Pôdorys a rozmery
ÚŽITKOVÁ PLOCHA:
95 m²
ROZMERY DOMU:
12 582 × 7 260 mm
POČET PODLAŽÍ:
2
POČET IZIEB:
3 (možnosť zmeny podľa potreby)
POČET KÚPEĽNÍ:
2
DRUHÉ SVETLO (SECOND LIGHT):
Áno
VONKAJŠIE PRVKY:
Terasa
Podrobné technické špecifikácie
Platforma
Hobľovaná a komorovo sušená doska 145 × 45 mm
Viazanie platformy 145 × 90 mm
OSB dosky – 12 mm a 22 mm
Ochranná sieť proti hlodavcom
Superdifúzna membrána Strotex 1300 (Poľsko)
Parozábranná fólia Strotex AL90
Bitúmenovo-gumový tesniaci tmel
Krytie terasy – terasová doska z ihličnatého dreva 105 × 35 mm
Sada upevňovacích materiálov (spojovacie prvky, kovanie a pod.)
Steny
Rámové steny – hobľované a komorovo sušené dosky 145 × 45 mm
Parozábranná fólia Strotex AL90
Superdifúzna membrána Strotex 1300 (Poľsko)
Latovanie
Stojatá falcovaná strešná krytina, hrúbka 0,45 mm (Kórea)
Fasádny obklad z ihličnatých dosiek (130 × 20 mm)
Sada upevňovacích materiálov (spojovacie prvky, kovanie a pod.)
Všetko rámové rezivo je ošetrené protipožiarnou a biologickou ochranou
Strecha
Hobľovaná, komorovo sušená doska – profil 145 (195) × 45 mm
Parozábranná fólia Strotex AL90
Superdifúzna membrána Strotex 1300 (Poľsko)
Latovanie
Stojatá falcovaná strešná krytina, hrúbka 0,45 mm (Kórea)
Sada špeciálnych lemovaní
Sada upevňovacích materiálov (spojovacie prvky, kovanie a pod.)
Všetko rámové rezivo je ošetrené proti požiaru a biologickým škodcom
Izolácia
Nehorľavé, tepelnoizolačné, hydrofóbne a zvukovoizolačné čadičové dosky IZOVAT s hustotou minimálne 30 kg/m³
Podlaha – 200 mm
Strecha – 150 – 200 mm
Steny – 150 – 350 mm
Za príplatok je možné objednať so zvýšenou úrovňou tepelnej izolácie
Okná a dvere
Päťkomorový PVC profil 70 (biely)
Energeticky úsporné dvojsklo s argónovou výplňou
Kovanie Siegenia Maco
Vchodové dvere – PVC 70 mm
- Súčasťou balenia je páska a pena na teplú montáž okenných a dverových konštrukcií
- Za príplatok je možné konštrukcie laminovať podľa vášho výberu
Doplnky
Súčasťou balenia je podrobný montážny návod
Dodacia lehota na drevený domový set: 6 – 7 týždňov (od dňa uhradenia zálohovej platby)
Materiály na interiér nie sú súčasťou dreveného setu (dostupné na požiadanie)
Čo je zahrnuté v cene základného balíka montovaného domu?
Všetky potrebné materiály a spojovacie prvky
V balení nájdete kompletný materiál vrátane dreva, izolácií, spojovacieho materiálu a montážnych prvkov – nič nemusíte zháňať navyše.
Podrobné pokyny pre svojpomocnú montáž
Súčasťou dodávky je detailný montážny manuál, vďaka ktorému zvládnete výstavbu aj bez predchádzajúcich skúseností.
Typ základu si vyberiete sami
Dom je pripravený na osadenie na vrutový základ, betónové pätky alebo inú alternatívu podľa vašich možností a terénu.
Výhody domu Norway
kompaktný pôdorys s maximálnym využitím každého štvorcového metra
vhodné na menší pozemok, bez potreby kompromisov v komforte
- funkčne rozdelený priestor: 2 izby, veľká kúpeľňa, vstavaný šatník, technická miestnosť, kuchynské štúdio
dodanie ako stavebnica vrátane všetkých konštrukčných častí a návodu
možnosť svojpomocnej výstavby – úspora až 30 % nákladov na montáž
Časová os realizácie
- Kontakt a výber variantu – do 24 hodín
- Zmluva + záloha – 2–5 dní
- Výroba vo fabrike – cca 10–14 pracovných dní
- Doručenie a montáž – 1–3 dni podľa rozsahu
- Odovzdanie hotového objektu – po dohode a montáži doplnkov
Pre investorov
Drevodom Norway je ideálny produkt pre:
- na celoročný alebo sezónny prenájom v prírodnom prostredí (napr. rekreačné pozemky, lesné parcely, vidiecke oblasti)
- pre ubytovanie hostí v menších rodinných alebo súkromných rezortoch
- ako samostatná jednotka pre firemné alebo zamestnanecké ubytovanie
- pre projekty s dôrazom na návratnosť investície pri nízkych prevádzkových nákladoch
Najčastejšie otázky
Je možné domček skolaudovať?
Áno, ak spĺňa miestne stavebné normy. Radi poradíme individuálne.
Dá sa použiť ako trvalé bývanie?
Áno, pri doplnení o inštalácie a interiérové vybavenie.
Je možná aj dodávka do zahraničia?
Áno, domy vieme dodať v rámci EÚ.
Zvládnem montáž aj svojpomocne?
Áno, súčasťou je návod. Na požiadanie vieme zabezpečiť technickú podporu alebo tím.
Aký typ vykurovania odporúčate?
Elektrické konvektory, infrapanely alebo podlahové vykurovanie.
Konfigurátor
Vyberte model, nastavte položky a získajte orientačnú cenu.
Vyberte model domu
Ceny sa automaticky prepnú podľa výberu.
Komplekt pre montáž (stručne)
Nosná drevená konštrukcia · fasáda (kov + drevo) · strecha (kov) · okná a dvere (PVC 70 mm, trojsklo) · hydroizolácia · parozábrana · tepelná izolácia (bazalt/IZOVAT) · OSB podlaha.
Vyberte, čo má cena obsahovať
Môžete počítať len komplekt, alebo pridať montáž a základ.
Doplnky a rozšírenia
Zobrazia sa len položky dostupné pre vybraný model (0 / prázdne = nedostupné).
Súhrn konfigurácie
Tu máte všetko pokope. Viete to skopírovať alebo rovno otvoriť e-mail s vyplneným súhrnom.
Text na skopírovanie
