Nord House je praktický rámový dom určený pre tých, ktorí hľadajú trvalé bývanie v kontakte s prírodou. Vďaka premyslenému rozloženiu ponúka dve samostatné izby, priestrannú kúpeľňu, vstavaný šatník, technickú miestnosť a otvorenú kuchyňu s obývačkou, ktorá sa plynule spája s exteriérovou terasou. Dom má klasickú sedlovú strechu, ktorá zabezpečuje dlhú životnosť, odolnosť voči poveternostným podmienkam a nadčasový vzhľad. Nord House je dodávaný ako prefabrikovaná stavebnica s presne pripravenými dielcami a montážnym návodom.
- Zastavaná plocha: 103 m²
- Rozmer: 95 m²
- Poschodia: 1
- Spálne: 2
- Terasa: 8 m²
- Kúpeľňa: Áno
49 500 eur
Nosná prefabrikovaná konštrukcia (steny, strecha, podlaha, okná, tepelná/zvuková izolácia)
14 850 eur
Montáž konštrukcie (Je potrebné zabezpečiť ubytovanie pre montážny tím. Ak to nie je možné, pracovníci môžu zostať v mobilnom karavane za poplatok 65 eur na deň).
Od 5 900 eur
Základy na pilótach alebo pätkách (pre rovný terén)
Dodatočné možnosti:
– Povrchová úprava okien – antracit – 2100 eur
– Zatmavenie skiel „Solar“ – 840 eur
– Základná elektroinštalácia – 3900 eur
– Vodoinštalácia a sanitárne zariadenie – 1150 eur
– Povrchová úprava stien (vrátane montáže priečok, dreveného obkladu a izolácie) – 8700 eur
– Vnútorné podlahy, laminát – 194000 eur
– Interiérové dvere, za kus, od 180 eur
– Dodatočná izolácia 50 mm – 3200 eur
– Dodatočná izolácia 100 mm – 6400 eur
– Strešné okno – 760 eur
– Bočné okno (výklopno-sklopné) 90×205 cm – 540 eur
– Bočné okno (pevné) 90×205 cm – 500 eur
– Bočné okno (výklopno-sklopné) 55×90 cm – 225 eur
– Kovové vstupné dvere s 2 zámkami a tepelnou izoláciou – 720 eur
– Dodatočné vstupné dvere (PVC) – 660 eur
Technické špecifikácie
KONŠTRUKCIA:
Rámová montovaná drevostavba (prefabrikované dielce vyrábané strojovo s dôrazom na presnosť a rýchlu montáž)
OKNÁ / DVERE:
Plastové profily, 5-komorové, dvojsklo (možnosť výmeny za trojsklo podľa požiadavky)
IZOLÁCIA:
Minerálna vlna – v stenách, podlahe aj streche (štandardná hrúbka 150–200 mm podľa zvolenej konfigurácie)
STREŠNÁ KRYTINA:
Sedlová strecha s kovovým plechom (spoľahlivý odvod vody, odolnosť voči poveternostným vplyvom, farebný variant podľa výberu klienta)
PODLAHA:
OSB doskové riešenie, pripravené na pokládku finálnej podlahovej vrstvy (napr. laminát, vinyl)
ŽIVOTNOSŤ DOMU:
Navrhnutá na viac ako 80 rokov pri správnej montáži a pravidelnej údržbe
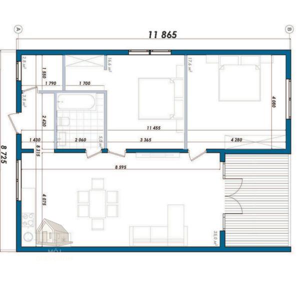
Pôdorys a rozmery
ÚŽITKOVÁ PLOCHA:
95 m²
ROZMERY DOMU:
11 865 × 8 725 mm
POČET PODLAŽÍ:
1
POČET IZIEB:
3 (možnosť zmeny podľa potreby)
POČET KÚPEĽNÍ:
1
DRUHÉ SVETLO (SECOND LIGHT):
Nie
VONKAJŠIE PRVKY:
Terasa
Čo je zahrnuté v cene základného balíka montovaného domu?
Všetky potrebné materiály a spojovacie prvky
V balení nájdete kompletný materiál vrátane dreva, izolácií, spojovacieho materiálu a montážnych prvkov – nič nemusíte zháňať navyše.
Podrobné pokyny pre svojpomocnú montáž
Súčasťou dodávky je detailný montážny manuál, vďaka ktorému zvládnete výstavbu aj bez predchádzajúcich skúseností.
Typ základu si vyberiete sami
Dom je pripravený na osadenie na vrutový základ, betónové pätky alebo inú alternatívu podľa vašich možností a terénu.
Výhody Nord House
kompaktný pôdorys s maximálnym využitím každého štvorcového metra
vhodné na menší pozemok, bez potreby kompromisov v komforte
- funkčne rozdelený priestor: 2 izby, veľká kúpeľňa, vstavaný šatník, technická miestnosť, kuchynské štúdio
dodanie ako stavebnica vrátane všetkých konštrukčných častí a návodu
možnosť svojpomocnej výstavby – úspora až 30 % nákladov na montáž
Časová os realizácie
- Kontakt a výber variantu – do 24 hodín
- Zmluva + záloha – 2–5 dní
- Výroba vo fabrike – cca 10–14 pracovných dní
- Doručenie a montáž – 1–3 dni podľa rozsahu
- Odovzdanie hotového objektu – po dohode a montáži doplnkov
Pre investorov
Nord House je ideálny produkt pre:
- na celoročný alebo sezónny prenájom v prírodnom prostredí (napr. rekreačné pozemky, lesné parcely, vidiecke oblasti)
- pre ubytovanie hostí v menších rodinných alebo súkromných rezortoch
- ako samostatná jednotka pre firemné alebo zamestnanecké ubytovanie
- pre projekty s dôrazom na návratnosť investície pri nízkych prevádzkových nákladoch
Najčastejšie otázky
Je možné domček skolaudovať?
Áno, ak spĺňa miestne stavebné normy. Radi poradíme individuálne.
Dá sa použiť ako trvalé bývanie?
Áno, pri doplnení o inštalácie a interiérové vybavenie.
Je možná aj dodávka do zahraničia?
Áno, domy vieme dodať v rámci EÚ.
Zvládnem montáž aj svojpomocne?
Áno, súčasťou je návod. Na požiadanie vieme zabezpečiť technickú podporu alebo tím.
Aký typ vykurovania odporúčate?
Elektrické konvektory, infrapanely alebo podlahové vykurovanie.
Kontakt
Zaujala vás naša ponuka? Napíšte nám.
- info@mojdrevodom.sk