-
-
-
-
-

Location Name Here.
-

Location Name Here.
-

Location Name Here.
FREYA je kompaktný a funkčný domový set v modernom štýle, navrhnutý pre komfortné bývanie, rekreáciu alebo investičné využitie. Jeho netradičná dispozícia, otvorený priestor cez dve podlažia a plnohodnotné druhé poschodie dodávajú domu vizuálnu priestrannosť a praktickosť pre každodenný život.
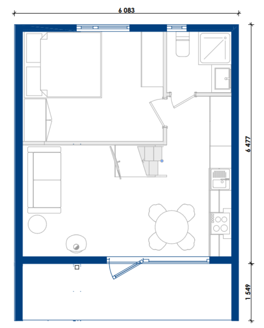
Dom má dve podlažia. Na prízemí sa nachádza otvorený priestor kuchyne prepojenej s obývacou časťou a jedálenským stolom, kúpeľňa a samostatná spálňa. Poschodie ponúka priestrannú spálňu alebo oddychovú zónu s možnosťou vytvoriť si pracovný kút či relaxačný priestor. Vďaka asymetrickej streche a dostatočnej výške stropu pôsobí interiér svetlo a útulne zároveň.
Konštrukcia domu je navrhnutá pre realizáciu na pilótových základoch alebo na pásovom základe, čo zabezpečuje flexibilitu pre rôzne typy pozemkov.
- Zastavaná plocha: 68 m²
- Rozmer: 42m²
- Poschodia: 2
- Spálne: 2
- Terasa: 10,5 m²
- Kúpeľňa: Áno
Technické špecifikácie
KONŠTRUKCIA:
Rámová montovaná drevostavba (prefabrikované dielce s fínskej technológie)
OKNÁ / DVERE:
Plastové profily, 5-komorové, dvojsklo (možnosť trojskla)
IZOLÁCIA:
Minerálna vlna – steny, podlaha aj strecha (hrúbky štandardne 150–200 mm podľa variantu)
STREŠNÁ KRYTINA:
Sedlová strecha s kovovým plechom (farebný variant podľa výberu klienta)
PODLAHA:
OSB doskové riešenie, pripravené na finálnu podlahovinu
ŽIVOTNOSŤ DOMU:
Navrhnutá na viac ako 80 rokov pri pravidelnej údržbe a správnej inštalácii
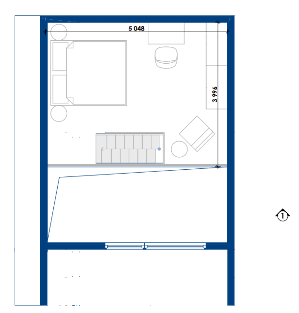
Pôdorys a rozmery
ÚŽITKOVÁ PLOCHA:
68m²
ROZMERY DOMU:
6 083 × 7 996 mm
POČET PODLAŽÍ:
2
POČET IZIEB:
2
POČET KÚPEĽNÍ:
1
DRUHÉ SVETLO (SECOND LIGHT):
Áno
VONKAJŠIE PRVKY:
Kompaktný pôdorys s terasou, vhodný na doplnenie podľa potreby klienta
Podrobné technické špecifikácie
Platforma
Hobľovaná a komorovo sušená doska 145 × 45 mm
Viazanie platformy 145 × 90 mm
OSB dosky – 12 mm a 22 mm
Ochranná sieť proti hlodavcom
Superdifúzna membrána Strotex 1300 (Poľsko)
Parozábranná fólia Strotex AL90
Bitúmenovo-gumový tesniaci tmel
Krytie terasy – terasová doska z ihličnatého dreva 105 × 35 mm
Sada upevňovacích materiálov (spojovacie prvky, kovanie a pod.)
Steny
Rámové steny – hobľované a komorovo sušené dosky 145 × 45 mm
Parozábranná fólia Strotex AL90
Superdifúzna membrána Strotex 1300 (Poľsko)
Latovanie
Stojatá falcovaná strešná krytina, hrúbka 0,45 mm (Kórea)
Fasádny obklad z ihličnatých dosiek (130 × 20 mm)
Sada upevňovacích materiálov (spojovacie prvky, kovanie a pod.)
Všetko rámové rezivo je ošetrené protipožiarnou a biologickou ochranou
Strecha
Hobľovaná, komorovo sušená doska – profil 145 (195) × 45 mm
Parozábranná fólia Strotex AL90
Superdifúzna membrána Strotex 1300 (Poľsko)
Latovanie
Stojatá falcovaná strešná krytina, hrúbka 0,45 mm (Kórea)
Sada špeciálnych lemovaní
Sada upevňovacích materiálov (spojovacie prvky, kovanie a pod.)
Všetko rámové rezivo je ošetrené proti požiaru a biologickým škodcom
Izolácia
Nehorľavé, tepelnoizolačné, hydrofóbne a zvukovoizolačné čadičové dosky IZOVAT s hustotou minimálne 30 kg/m³
Podlaha – 200 mm
Strecha – 150 – 200 mm
Steny – 150 – 350 mm
Za príplatok je možné objednať so zvýšenou úrovňou tepelnej izolácie
Okná a dvere
Päťkomorový PVC profil 70 (biely)
Energeticky úsporné dvojsklo s argónovou výplňou
Kovanie Siegenia Maco
Vchodové dvere – PVC 70 mm
- Súčasťou balenia je páska a pena na teplú montáž okenných a dverových konštrukcií
- Za príplatok je možné konštrukcie laminovať podľa vášho výberu
Doplnky
Súčasťou balenia je podrobný montážny návod
Dodacia lehota na drevený domový set: 6 – 7 týždňov (od dňa uhradenia zálohovej platby)
Materiály na interiér nie sú súčasťou dreveného setu (dostupné na požiadanie)
Čo je zahrnuté v cene základného balíka montovaného domu?
Všetky potrebné materiály a spojovacie prvky
V balení nájdete kompletný materiál vrátane dreva, izolácií, spojovacieho materiálu a montážnych prvkov – nič nemusíte zháňať navyše.
Podrobné pokyny pre svojpomocnú montáž
Súčasťou dodávky je detailný montážny manuál, vďaka ktorému zvládnete výstavbu aj bez predchádzajúcich skúseností.
Typ základu si vyberiete sami
Dom je pripravený na osadenie na vrutový základ, betónové pätky alebo inú alternatívu podľa vašich možností a terénu.
Výhody domu Freya
Kompaktný montovaný dom s plnohodnotným druhým podlažím, ideálny ako drevodom na bývanie aj rekreáciu.
Otvorený priestor zabezpečí viac svetla, pocit väčšej priestrannosti.
Premyslená dispozícia – samostatná spálňa na prízemí + variabilný priestor na poschodí.
Možnosť realizácie na pilótach aj pásových základoch podľa typu pozemku.
Časová os realizácie
- Kontakt a výber variantu – do 24 hodín
- Zmluva + záloha – 2–5 dní
- Výroba vo fabrike – cca 10–14 pracovných dní
- Doručenie a montáž – 1–3 dni podľa rozsahu
- Odovzdanie hotového objektu – po dohode a montáži doplnkov
Pre investorov
Dom Freya je ideálny produkt pre:
- krátkodobý prenájom (Airbnb, Booking)
- sezónne ubytovanie pre zamestnancov
- developerské mikroprojekty na malých pozemkoch
rozšírenie ubytovacích kapacít v kempoch alebo rezortoch
Najčastejšie otázky
Je možné domček skolaudovať?
Áno, ak spĺňa miestne stavebné normy. Radi poradíme individuálne.
Dá sa použiť ako trvalé bývanie?
Áno, pri doplnení o inštalácie a interiérové vybavenie.
Je možná aj dodávka do zahraničia?
Áno, domy vieme dodať v rámci EÚ.
Zvládnem montáž aj svojpomocne?
Áno, súčasťou je návod. Na požiadanie vieme zabezpečiť technickú podporu alebo tím.
Aký typ vykurovania odporúčate?
Elektrické konvektory, infrapanely alebo podlahové vykurovanie.
