Flat Small je ideálnou voľbou pre všetkých, ktorí hľadajú štýlové, funkčné a cenovo dostupné bývanie. Tento model predstavuje kompaktný montovaný dom s plochou strechou, ktorý spája moderný dizajn s rýchlou a jednoduchou výstavbou. Vďaka svojej rozumnej veľkosti, praktickému riešeniu a minimalistickej architektúre je vhodný ako štartovací dom pre mladých, víkendová chata, samostatný apartmán, dom pre seniorov alebo záhradný ateliér.
- Zastavaná plocha: 41 m²
- Rozmer: 25,5m²
- Poschodia: 1
- Spálne: 1
- Terasa: 10,5 m²
- Kúpeľňa: Áno
19 500 €
Nosná prefabrikovaná konštrukcia (steny, strecha, podlaha, okná, tepelná/zvuková izolácia)
4 875 €
Montáž konštrukcie (Je potrebné zabezpečiť ubytovanie pre montážny tím. Ak to nie je možné, pracovníci môžu zostať v mobilnom karavane za poplatok 65 eur na deň).
Od 1600 €
Základy na pilótach alebo pätkách (pre rovný terén)
Dodatočné možnosti:
– Povrchová úprava okien – antracit – 750 eur
– Zatmavenie skiel „Solar“ – 340 eur
– Základná elektroinštalácia – 2300 eur
– Vodoinštalácia a sanitárne zariadenie – 980 eur
– Povrchová úprava stien (vrátane montáže priečok, dreveného obkladu a izolácie) – 3800 eur
– Vnútorné podlahy, laminát – 840 eur
– Interiérové dvere, za kus, od 180 eur
– Dodatočná izolácia 50 mm – 1400 eur
– Dodatočná izolácia 100 mm – 2800 eur
– Strešné okno – 760 eur
– Bočné okno (výklopno-sklopné) 90×205 cm – 540 eur
– Bočné okno (pevné) 90×205 cm – 500 eur
– Bočné okno (výklopno-sklopné) 55×90 cm – 225 eur
– Dekoratívna pergola na konektoroch – 790 eur
– Kovové vstupné dvere s 2 zámkami a tepelnou izoláciou – 720 eur
– Dodatočné vstupné dvere (PVC) – 660 eur
Technické špecifikácie
KONŠTRUKCIA:
Rámová montovaná drevostavba (prefabrikované dielce s fínskej technológie)
OKNÁ / DVERE:
Plastové profily, 5-komorové, dvojsklo (možnosť trojskla)
IZOLÁCIA:
Minerálna vlna – steny, podlaha aj strecha (hrúbky štandardne 150–200 mm podľa variantu)
STREŠNÁ KRYTINA:
Sedlová strecha s kovovým plechom (farebný variant podľa výberu klienta)
PODLAHA:
OSB doskové riešenie, pripravené na finálnu podlahovinu
ŽIVOTNOSŤ DOMU:
Navrhnutá na viac ako 80 rokov pri pravidelnej údržbe a správnej inštalácii
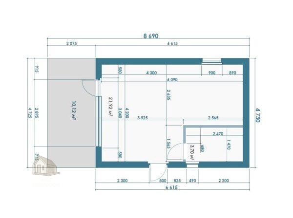
Pôdorys a rozmery
ÚŽITKOVÁ PLOCHA:
29 m²
ROZMERY DOMU:
8 690 × 4 730 mm
POČET PODLAŽÍ:
1
POČET IZIEB:
2 (denná zóna + samostatná spálňa)
POČET KÚPEĽNÍ:
1
DRUHÉ SVETLO (SECOND LIGHT):
Nie – prirodzené presvetlenie zabezpečené štandardnými oknami
VONKAJŠIE PRVKY:
Kompaktný pôdorys bez terasy, vhodný na doplnenie podľa potreby klienta
Čo je zahrnuté v cene základného balíka montovaného domu?
Všetky potrebné materiály a spojovacie prvky
V balení nájdete kompletný materiál vrátane dreva, izolácií, spojovacieho materiálu a montážnych prvkov – nič nemusíte zháňať navyše.
Podrobné pokyny pre svojpomocnú montáž
Súčasťou dodávky je detailný montážny manuál, vďaka ktorému zvládnete výstavbu aj bez predchádzajúcich skúseností.
Typ základu si vyberiete sami
Dom je pripravený na osadenie na vrutový základ, betónové pätky alebo inú alternatívu podľa vašich možností a terénu.
Výhody Barn Light
- Nízka vstupná cena
- Výstavba do pár dní
- Certifikované materiály a ekologický prístup
- Nízke prevádzkové náklady
- Možnosť modulárneho rozšírenia
- Ideálny aj ako ubytovanie pre hostí alebo na prenájom
- Energetická efektivita – príprava na A1 štandard
- Bez potreby základov – možnosť osadenia na zemné vruty
Časová os realizácie
- Kontakt a výber variantu – do 24 hodín
- Zmluva + záloha – 2–5 dní
- Výroba vo fabrike – cca 10–14 pracovných dní
- Doručenie a montáž – 1–3 dni podľa rozsahu
- Odovzdanie hotového objektu – po dohode a montáži doplnkov
Pre investorov
Flat Small je ideálny produkt pre:
- krátkodobý prenájom (Airbnb, Booking)
- sezónne ubytovanie pre zamestnancov
- developerské mikroprojekty na malých pozemkoch
rozšírenie ubytovacích kapacít v kempoch alebo rezortoch
Najčastejšie otázky
Je možné domček skolaudovať?
Áno, ak spĺňa miestne stavebné normy. Radi poradíme individuálne.
Dá sa použiť ako trvalé bývanie?
Áno, pri doplnení o inštalácie a interiérové vybavenie.
Je možná aj dodávka do zahraničia?
Áno, domy vieme dodať v rámci EÚ.
Zvládnem montáž aj svojpomocne?
Áno, súčasťou je návod. Na požiadanie vieme zabezpečiť technickú podporu alebo tím.
Aký typ vykurovania odporúčate?
Elektrické konvektory, infrapanely alebo podlahové vykurovanie.
Kontakt
Zaujala vás naša ponuka? Napíšte nám.
- info@mojdrevodom.sk