Rámový montovaný dom
Flat House 2,7 m
Flat House s výškou stropu 2,7 m je navrhnutý ako praktické a cenovo dostupné riešenie moderného bývania. Vďaka jednoduchej montáži a čistému architektonickému štýlu je tento plochý montovaný dom ideálnou voľbou pre záhrady, rekreačné pozemky aj ako vedľajší objekt k hlavnému domu. S rozumnou úžitkovou plochou poskytuje dostatok komfortu bez zbytočnej veľkosti. Je ideálny ako víkendový domček, ateliér, záhradná kancelária alebo štartovací dom pre jednotlivcov a páry. Plochá strecha s miernym sklonom pôsobí elegantne a umožňuje osadenie aj v lokalitách s obmedzenou výškou stavieb.
Dom je dodávaný ako kompletná stavebnica vyrobená z certifikovaného rámového systému. Obsah balenia:
presne narezané a pripravené drevené dielce,
všetky spojovacie a montážne prvky,
podrobný návod na montáž krok za krokom.
Základy si pripravuje zákazník individuálne – vhodné sú skrutkové zemné vruty, betónové pätky, stĺpy alebo iný typ základu podľa konkrétnych podmienok na pozemku.
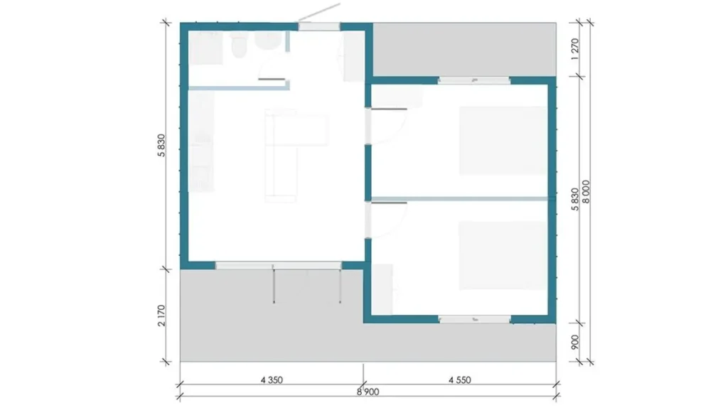
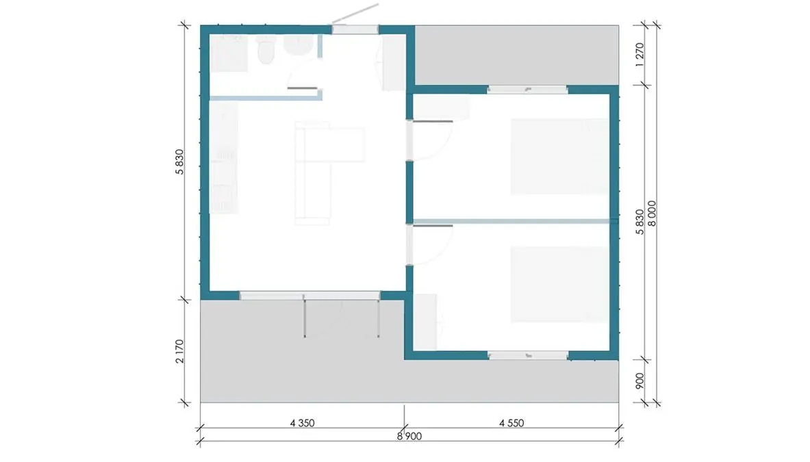
- Zastavaná plocha: 72 m²
- Rozmer: 52 m²
- Poschodia: 1
- Spálne: 2
- Terasa: 20 m²
- Kúpeľňa: Áno
Cena a možnosti výbavy
Prehľad orientačnej ceny, príplatkovej výbavy a technických parametrov modulového domu v prehľadnej a modernej forme.
(steny, strecha, podlaha, okná, tepelná a zvuková izolácia)
(je potrebné zabezpečiť ubytovanie pre montážny tím; ak to nie je možné, pracovníci môžu zostať v mobilnom karavane za poplatok 65 € / deň)
(pre rovný terén)
• obvodové steny, strecha a podlaha
• okná a základná izolácia
• pripravenosť na ďalšie doplnenie výbavy
• možnosť individuálnej konfigurácie podľa požiadaviek
Príplatková výbava
Voliteľné prvky a rozšírenia, ktoré si viete doplniť podľa požiadaviek projektu.
| Položka | Cena |
|---|---|
| Povrchová úprava okien – antracit | 1550 € |
| Zatmavenie skiel „Solar“ | 680 € |
| Základná elektroinštalácia | 3 900 € |
| Vodoinštalácia a sanitárne zariadenie | 1 380 € |
| Povrchová úprava stien (vrátane montáže priečok, dreveného obkladu a izolácie) | 12 300 € |
| Vnútorné podlahy – laminát | 2040 € |
| Interiérové dvere | 750 € |
| Dodatočná izolácia 50 mm | 2 950 € |
| Dodatočná izolácia 100 mm | 2 400 € |
| Strešné okno | 760 € |
| Bočné okno (výklopno-sklopné) 90×205 cm | 540 € |
| Bočné okno (pevné) 90×205 cm | 500 € |
| Bočné okno (výklopno-sklopné) 55×90 cm | 225 € |
| Kovové vstupné dvere (2 zámky, tepelná izolácia) | 720 € |
| Dodatočné vstupné dvere (PVC) | 660 € |
| Kuchyňa (bez spotrebičov) | 2 850 € |
| Vybavenie kúpeľne (sprchový kút, WC, bojler, umývadlo) | 1 800 € |
| Zvýšenie rozmerov na dĺžku v násobkoch 1,3 m | 3 550 € |
Technické špecifikácie
Pôdorys a rozmery
– obytná miestnosť s kuchynským kútom
– spálňová časť oddelená priečkou
– kúpeľňa so sprchovým kútom a WC
Vypočítajte si cenu svojho drevodomu!
Konfigurátor
Vyberte model, nastavte položky a získajte orientačnú cenu.
Vyberte model domu
Ceny sa automaticky prepnú podľa výberu.
Komplekt pre montáž (stručne)
Nosná drevená konštrukcia · fasáda (kov + drevo) · strecha (kov) · okná a dvere (PVC 70 mm, trojsklo) · hydroizolácia · parozábrana · tepelná izolácia (bazalt/IZOVAT) · OSB podlaha.
Vyberte, čo má cena obsahovať
Môžete počítať len komplekt, alebo pridať montáž a základ.
Doplnky a rozšírenia
Zobrazia sa len položky dostupné pre vybraný model (0 / prázdne = nedostupné).
Súhrn konfigurácie
Tu máte všetko pokope. Viete to skopírovať alebo rovno otvoriť e-mail s vyplneným súhrnom.
Text na skopírovanie
Podrobné technické špecifikácie
Platforma
Hobľovaná a komorovo sušená doska 145 × 45 mm
Viazanie platformy 145 × 90 mm
OSB dosky – 12 mm a 22 mm
Ochranná sieť proti hlodavcom
Superdifúzna membrána Strotex 1300 (Poľsko)
Parozábranná fólia Strotex AL90
Bitúmenovo-gumový tesniaci tmel
Krytie terasy – terasová doska z ihličnatého dreva 105 × 35 mm
Sada upevňovacích materiálov (spojovacie prvky, kovanie a pod.)
Steny
Rámové steny – hobľované a komorovo sušené dosky 145 × 45 mm
Parozábranná fólia Strotex AL90
Superdifúzna membrána Strotex 1300 (Poľsko)
Latovanie
Stojatá falcovaná strešná krytina, hrúbka 0,45 mm (Kórea)
Fasádny obklad z ihličnatých dosiek (130 × 20 mm)
Sada upevňovacích materiálov (spojovacie prvky, kovanie a pod.)
Všetko rámové rezivo je ošetrené protipožiarnou a biologickou ochranou
Strecha
Hobľovaná, komorovo sušená doska – profil 145 (195) × 45 mm
Parozábranná fólia Strotex AL90
Superdifúzna membrána Strotex 1300 (Poľsko)
Latovanie
Stojatá falcovaná strešná krytina, hrúbka 0,45 mm (Kórea)
Sada špeciálnych lemovaní
Sada upevňovacích materiálov (spojovacie prvky, kovanie a pod.)
Všetko rámové rezivo je ošetrené proti požiaru a biologickým škodcom
Izolácia
Nehorľavé, tepelnoizolačné, hydrofóbne a zvukovoizolačné čadičové dosky IZOVAT s hustotou minimálne 30 kg/m³
Podlaha – 200 mm
Strecha – 150 – 200 mm
Steny – 150 – 350 mm
Za príplatok je možné objednať so zvýšenou úrovňou tepelnej izolácie
Okná a dvere
Päťkomorový PVC profil 70 (biely)
Energeticky úsporné dvojsklo s argónovou výplňou
Kovanie Siegenia Maco
Vchodové dvere – PVC 70 mm
- Súčasťou balenia je páska a pena na teplú montáž okenných a dverových konštrukcií
- Za príplatok je možné konštrukcie laminovať podľa vášho výberu
Doplnky
Súčasťou balenia je podrobný montážny návod
Dodacia lehota na drevený domový set: 6 – 7 týždňov (od dňa uhradenia zálohovej platby)
Materiály na interiér nie sú súčasťou dreveného setu (dostupné na požiadanie)
Čo je zahrnuté v cene základného balíka montovaného domu?
Všetky potrebné materiály a spojovacie prvky
V balení nájdete kompletný materiál vrátane dreva, izolácií, spojovacieho materiálu a montážnych prvkov – nič nemusíte zháňať navyše.
Podrobné pokyny pre svojpomocnú montáž
Súčasťou dodávky je detailný montážny manuál, vďaka ktorému zvládnete výstavbu aj bez predchádzajúcich skúseností.
Typ základu si vyberiete sami
Dom je pripravený na osadenie na vrutový základ, betónové pätky alebo inú alternatívu podľa vašich možností a terénu.
Výhody Flat House 2,7 m
- vyšší strop pre pocit väčšieho priestoru (2,7 m výška)
- výstavba v priebehu niekoľkých dní
- kvalitné certifikované materiály a ekologický prístup
- nízke energetické straty vďaka účinnej izolácii
- možnosť osadiť bez klasických základov (napr. na zemné vruty)
- vhodný na celoročné bývanie, prenájom, home office aj rekreáciu
- možnosť dispozičných úprav podľa potrieb
- moderný vzhľad, ktorý zapadne do akéhokoľvek prostredia
Časová os realizácie
- Kontakt a výber variantu – do 24 hodín
- Zmluva + záloha – 2–5 dní
- Výroba vo fabrike – cca 10–14 pracovných dní
- Doručenie a montáž – 1–3 dni podľa rozsahu
- Odovzdanie hotového objektu – po dohode a montáži doplnkov
Pre investorov
Flat House 2,7m je ideálny produkt pre:
- krátkodobý prenájom (Airbnb, Booking)
- glamping a relaxation projekty
- zvýšenie ubytovacích kapacít v kempoch či firemných areáloch
- spätnú investíciu pri nízkej vstupnej nákladovej investícii
Najčastejšie otázky
Je možné domček skolaudovať?
Áno, ak spĺňa miestne stavebné normy. Radi poradíme individuálne.
Dá sa použiť ako trvalé bývanie?
Áno, pri doplnení o inštalácie a interiérové vybavenie.
Je možná aj dodávka do zahraničia?
Áno, domy vieme dodať v rámci EÚ.
Zvládnem montáž aj svojpomocne?
Áno, súčasťou je návod. Na požiadanie vieme zabezpečiť technickú podporu alebo tím.
Aký typ vykurovania odporúčate?
Elektrické konvektory, infrapanely alebo podlahové vykurovanie.
