Flat House 1,5 je rozšírený variant obľúbeného modelu Flat, ktorý ponúka viac priestoru a komfortu na jednom poschodí. Vďaka úžitkovej ploche 78 m² a jednoduchej, no premyslenej dispozícii je ideálny ako celoročné bývanie pre pár alebo menšiu rodinu, prípadne ako víkendový dom či ubytovanie na prenájom. Dom si zachováva všetky výhody plochých modelov – nízku výšku, moderný dizajn, energetickú efektivitu a rýchlu výstavbu. Vďaka rovnej streche s miernym sklonom a kompaktnému pôdorysu je vhodný aj na pozemky s obmedzenou výškou stavieb.
Flat House 1,5 sa dodáva ako kompletná stavebnica z certifikovaných materiálov, vrátane presne narezaných drevených dielcov, spojovacích prvkov a montážneho návodu. Základy si zákazník pripravuje individuálne, najčastejšie pomocou zemných vrutov alebo betónových pätiek.
- Zastavaná plocha: 108 m²
- Rozmer: 78m²
- Poschodia: 1
- Spálne: 3
- Terasa: 30 m²
- Kúpeľňa: Áno
Od 44 900 €
Nosná prefabrikovaná konštrukcia (steny, strecha, podlaha, okná, tepelná/zvuková izolácia)
Od 13 470 €
Montáž konštrukcie (Je potrebné zabezpečiť ubytovanie pre montážny tím. Ak to nie je možné, pracovníci môžu zostať v mobilnom karavane za poplatok 65 eur na deň).
Od 4 800 €
Základy na pilótach alebo pätkách (pre rovný terén)
Dodatočné možnosti:
– Povrchová úprava okien – antracit – 2400 eur
– Zatmavenie skiel „Solar“ – 840 eur
– Základná elektroinštalácia – 5200 eur
– Vodoinštalácia a sanitárne zariadenie – 2100 eur
– Povrchová úprava stien (vrátane montáže priečok, dreveného obkladu a izolácie) – 12700 eur
– Vnútorné podlahy, laminát – 2640 eur
– Interiérové dvere, za kus, od 180 eur
– Dodatočná izolácia 50 mm – 4400 eur
– Dodatočná izolácia 100 mm – 8800 eur
– Strešné okno – 760 eur
– Bočné okno (výklopno-sklopné) 90×205 cm – 540 eur
– Bočné okno (pevné) 90×205 cm – 500 eur
– Bočné okno (výklopno-sklopné) 55×90 cm – 225 eur
– Dekoratívna pergola na konektoroch – 790 eur
– Kovové vstupné dvere s 2 zámkami a tepelnou izoláciou – 720 eur
– Dodatočné vstupné dvere (PVC) – 660 eur
Technické špecifikácie
KONŠTRUKCIA:
Rámová montovaná drevostavba (prefabrikované dielce s overenou škandinávskou technológiou z KVH hranolov)
OKNÁ / DVERE:
Plastové profily, 5-komorové, energeticky úsporné dvojsklo s argónovou výplňou (možnosť trojskla alebo hliníkových okien za príplatok)
IZOLÁCIA:
Minerálna vlna – v stenách, podlahe aj streche
Hrúbka: 150 mm (steny a strecha), 200 mm (podlaha)
STREŠNÁ KRYTINA:
Plochá strecha s miernym sklonom, krytina typu standing seam z oceľového plechu (možnosť výberu farebného odtieňa)
PODLAHA:
OSB doskové riešenie (12 + 22 mm), pripravené na pokládku finálnej podlahovej vrstvy (laminát, vinyl, drevo a pod.)
ŽIVOTNOSŤ DOMU:
Navrhnutá na viac ako 80 rokov pri správnej montáži a bežnej údržbe
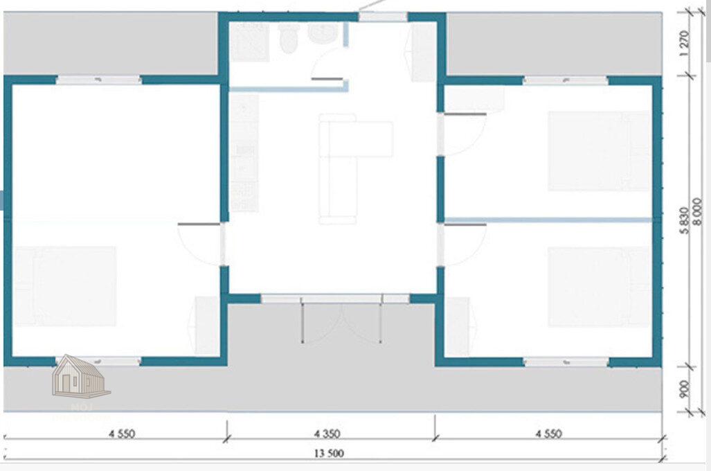
Pôdorys a rozmery
ÚŽITKOVÁ PLOCHA:
78 m²
ROZMERY DOMU:
13 500 × 8 800 mm
POČET PODLAŽÍ:
1
POČET IZIEB:
4 (3 samostatné izby + otvorená denná zóna; možnosť úprav podľa potreby)
POČET KÚPEĽNÍ:
1 (s priestorom na technické zázemie)
DRUHÉ SVETLO (SECOND LIGHT):
Nie – plnohodnotné presvetlenie vďaka viacerým oknám v každej miestnosti
VONKAJŠIE PRVKY:
Predpripravený vstupný priestor na terasu alebo kryté zádverie (možnosť individuálneho doplnenia)
Čo je zahrnuté v cene základného balíka montovaného domu?
Všetky potrebné materiály a spojovacie prvky
V balení nájdete kompletný materiál vrátane dreva, izolácií, spojovacieho materiálu a montážnych prvkov – nič nemusíte zháňať navyše.
Podrobné pokyny pre svojpomocnú montáž
Súčasťou dodávky je detailný montážny manuál, vďaka ktorému zvládnete výstavbu aj bez predchádzajúcich skúseností.
Typ základu si vyberiete sami
Dom je pripravený na osadenie na vrutový základ, betónové pätky alebo inú alternatívu podľa vašich možností a terénu.
Výhody Flat House 1,5
- Nízka vstupná cena
- Výstavba do pár dní
- Certifikované materiály a ekologický prístup
- Nízke prevádzkové náklady
- Možnosť modulárneho rozšírenia
- Ideálny aj ako ubytovanie pre hostí alebo na prenájom
- Energetická efektivita – príprava na A1 štandard
- Bez potreby základov – možnosť osadenia na zemné vruty
Časová os realizácie
- Kontakt a výber variantu – do 24 hodín
- Zmluva + záloha – 2–5 dní
- Výroba vo fabrike – cca 10–14 pracovných dní
- Doručenie a montáž – 1–3 dni podľa rozsahu
- Odovzdanie hotového objektu – po dohode a montáži doplnkov
Pre investorov
Flat House 1,5 je ideálny produkt pre:
- celoročné aj sezónne ubytovanie na prenájom (napr. Airbnb, Booking)
- developerské mikroprojekty na menších pozemkoch
- glampingové alebo rekreačné rezorty s vyšším štandardom
- samostatné bývanie pre zamestnancov v priemyselných alebo hotelových areáloch
- rozšírenie kapacít v kempoch, areáloch alebo firemných pozemkoch
Najčastejšie otázky
Je možné domček skolaudovať?
Áno, ak spĺňa miestne stavebné normy. Radi poradíme individuálne.
Dá sa použiť ako trvalé bývanie?
Áno, pri doplnení o inštalácie a interiérové vybavenie.
Je možná aj dodávka do zahraničia?
Áno, domy vieme dodať v rámci EÚ.
Zvládnem montáž aj svojpomocne?
Áno, súčasťou je návod. Na požiadanie vieme zabezpečiť technickú podporu alebo tím.
Aký typ vykurovania odporúčate?
Elektrické konvektory, infrapanely alebo podlahové vykurovanie.
Kontakt
Zaujala vás naša ponuka? Napíšte nám.
- info@mojdrevodom.sk