„Jednoduchý tvar, vysoký komfort, minimálne náklady“ – A-FRAME je ideálny ako víkendový dom, celoročné bývanie, rekreačná jednotka či dizajnová Airbnb chata. Vďaka svojej originálnej siluete v tvare písmena A pôsobí moderne, a zároveň harmonicky zapadá do prírody aj do mestského prostredia.
- Zastavaná plocha: 48 m²
- Rozmer: 38m² + 12m² mezonet
- Poschodia: 2
- Spálne: 1
- Terasa: 9 m²
- Kúpeľňa: Áno
22 700 €
Nosná prefabrikovaná konštrukcia (steny, strecha, podlaha, okná, tepelná/zvuková izolácia)
5 675 €
Montáž konštrukcie (Je potrebné zabezpečiť ubytovanie pre montážny tím. Ak to nie je možné, pracovníci môžu zostať v mobilnom karavane za poplatok 65 eur na deň).
Od 2 100 €
Základy na pilótach alebo pätkách (pre rovný terén)
Dodatočné možnosti:
– Povrchová úprava stien (vrátane montáže priečok, dreveného obkladu a izolácie) – 4400 eur
– Vnútorné podlahy, laminát – 980 eur
– Interiérové dvere, za kus, od 180 eur
– Dodatočná izolácia 50 mm – 1600 eur
– Dodatočná izolácia 100 mm – 3200 eur
– Strešné okno – 760 eur
– Bočné okno (výklopno-sklopné) 90×205 cm – 540 eur
– Bočné okno (pevné) 90×205 cm – 500 eur
– Bočné okno (výklopno-sklopné) 55×90 cm – 225 eur
– Kovové vstupné dvere s 2 zámkami a tepelnou izoláciou – 720 eur
– Dodatočné vstupné dvere (PVC) – 660 eur
– Zväčšenie rozmerov na dĺžku, v násobkoch 1,2 m (iba pre stodolu, dvojitú stodolu, A-frame) – 3550 eur
Doplnky a voliteľné prvky
- Elektroinštalácia: zásuvky, vypínače, osvetlenie
- Sanita: sprcha, WC, umývadlo
- Kúrenie: elektrické konvektory, infrapanely, podlahové kúrenie
- Fasáda: drevo, omietka, plech
- Terasa: 6–10 m² podľa výberu
- Strešné okno alebo svetlík
- Interiérové priečky a nábytok na mieru
na základe dohody
Technické špecifikácie
KONŠTRUKCIA:
Rámová konštrukcia z drevených krokiev (145 × 45 mm), drevostavba s fasádnym obkladom – štandardne drevený alebo kovový typu standing seam
IZOLÁCIA:
Minerálna vlna IZOVAT – steny, podlaha, strecha (hrúbky podľa konkrétneho modelu)
OKNÁ / DVERE:
5-komorový profil s dvojsklom (možnosť trojskla)
TRVANIE ŽIVOTNOSTI:
Navrhnutý pre 80+ rokov služby
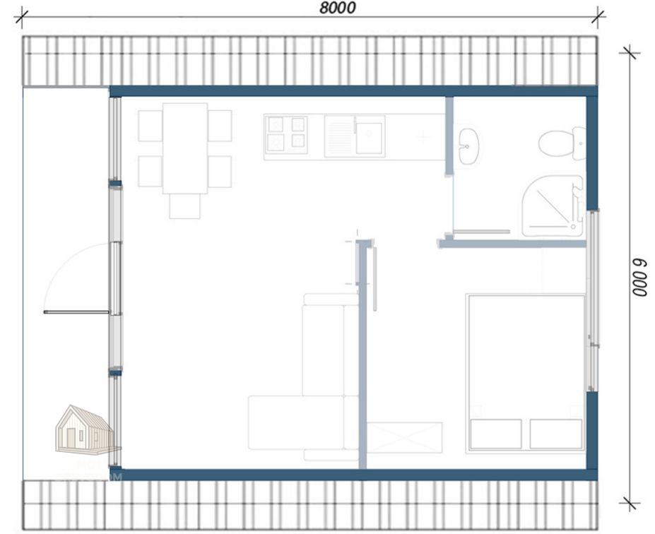
Pôdorys a rozmery
ROZMERY DOMU:
8,0 × 6,0 m
ÚŽITKOVÁ PLOCHA INTERIÉRU:
Cca 28 m²
– obytná miestnosť s kuchynským kútom
– spálňová časť oddelená priečkou
– kúpeľňa so sprchovým kútom a WC
VÝŠKA STIEN:
2,2 m
VÝŠKA V ŠTÍTE:
4,75 m
POSCHODIE (MEZANÍN):
Dostupné v rámci strešného priestoru, určené pre spanie
DISPOZÍCIA:
Kompaktný interiér je rozdelený na dennú a nočnú zónu. Denná časť pozostáva z otvoreného priestoru s kuchynským kútom a stolovaním. Nočná časť je odčlenená priečkou a poskytuje súkromie. Kúpeľňa je samostatná a má vlastné okno.
Čo je súčasťou montovaného domu v základe
Všetky potrebné materiály a spojovacie prvky
V balení nájdete kompletný materiál vrátane dreva, izolácií, spojovacieho materiálu a montážnych prvkov – nič nemusíte zháňať navyše.
Podrobné pokyny pre svojpomocnú montáž
Súčasťou dodávky je detailný montážny manuál, vďaka ktorému zvládnete výstavbu aj bez predchádzajúcich skúseností.
Typ základu si vyberiete sami
Dom je pripravený na osadenie na vrutový základ, betónové pätky alebo inú alternatívu podľa vašich možností a terénu.
Výhody A-Frame
- Ikonický dizajn A-frame
- Rýchla výstavba do 2–4 týždňov
- Ideálne ako chata, Airbnb, záhradný dom alebo minimalistické bývanie
- Nízke prevádzkové náklady
- Ekologické materiály a nízka uhlíková stopa
- Vysoký strop a loftový priestor
- Využitie každej časti podkrovia
- Bez potreby veľkých základov
Časová os realizácie
- Kontakt a výber variantu – do 24 hodín
- Zmluva + záloha – 2–5 dní
- Výroba vo fabrike – cca 10–14 pracovných dní
- Doručenie a montáž – 1–3 dni podľa rozsahu
- Odovzdanie hotového objektu – po dohode a montáži doplnkov
Pre investorov
A-frame je ideálny produkt pre:
- Airbnb / Booking – výnimočný dizajn láka hostí
- Zázemie pre zamestnancov
- Rekreačné chaty, mikroresorty
- Kancelária alebo štúdio v prírode
- Očakávaný ročný výnos z prenájmu: 5 000 – 9 000 € (v závislosti od lokality)
rozšírenie ubytovacích kapacít v kempoch alebo rezortoch
Q&A
Je možné domček skolaudovať?
Áno, ak spĺňa miestne stavebné normy. Radi poradíme individuálne.
Dá sa použiť ako trvalé bývanie?
Áno, pri doplnení o inštalácie a interiérové vybavenie.
Je možná aj dodávka do zahraničia?
Áno, domy vieme dodať v rámci EÚ.
Zvládnem montáž aj svojpomocne?
Áno, súčasťou je návod. Na požiadanie vieme zabezpečiť technickú podporu alebo tím.
Aký typ vykurovania odporúčate?
Elektrické konvektory, infrapanely alebo podlahové vykurovanie.
Kontakt
Zaujala vás naša ponuka? Napíšte nám.
- info@mojdrevodom.sk